+380 73 295 43 10

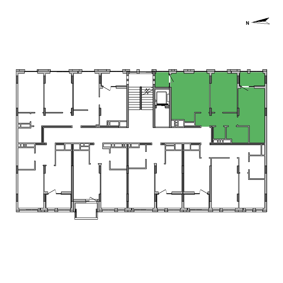
Планування 2-кімнатної квартири: №13, 79.83 м²

Будинок Father
Секція 4.1
Черга 1
Поверх 4
Готовність 31 серп. 2027 р.
Загальна площа 79.83 m²
Ціна, UAH
58 677 UAH/м²
Загальна вартість, UAH
4 684 244 UAH
* без урахування акційних пропозицій

Внесок від 30%

Ціна збільшується на 5% одноразово

Внесок від 50%

Без зміни вартості

Повна оплата

Знижка 3%

Розтермінування

– Щомісячно або поквартально
– До введення в експлуатацію
– Привʼязка до курсу продажу $ на riel.ua

Діють для:

  • Військовослужбовців (усі задіяні структури) та їхніх сімей
  • Медпрацівників та їхніх сімей
  • Переселенців із зони бойових дій

Умова

Знижка надається за будь-якого першого внеску

Військовослужбовці

  • Якщо перебувають у зоні бойових дій — знижка 5%
  • Якщо не перебувають у зоні бойових дій — знижка 3%

Медпрацівники

  • Якщо перебувають у зоні бойових дій — знижка 5%
  • Якщо не перебувають у зоні бойових дій — знижка 3%

Переселенці із зони бойових дій

Знижка 5%